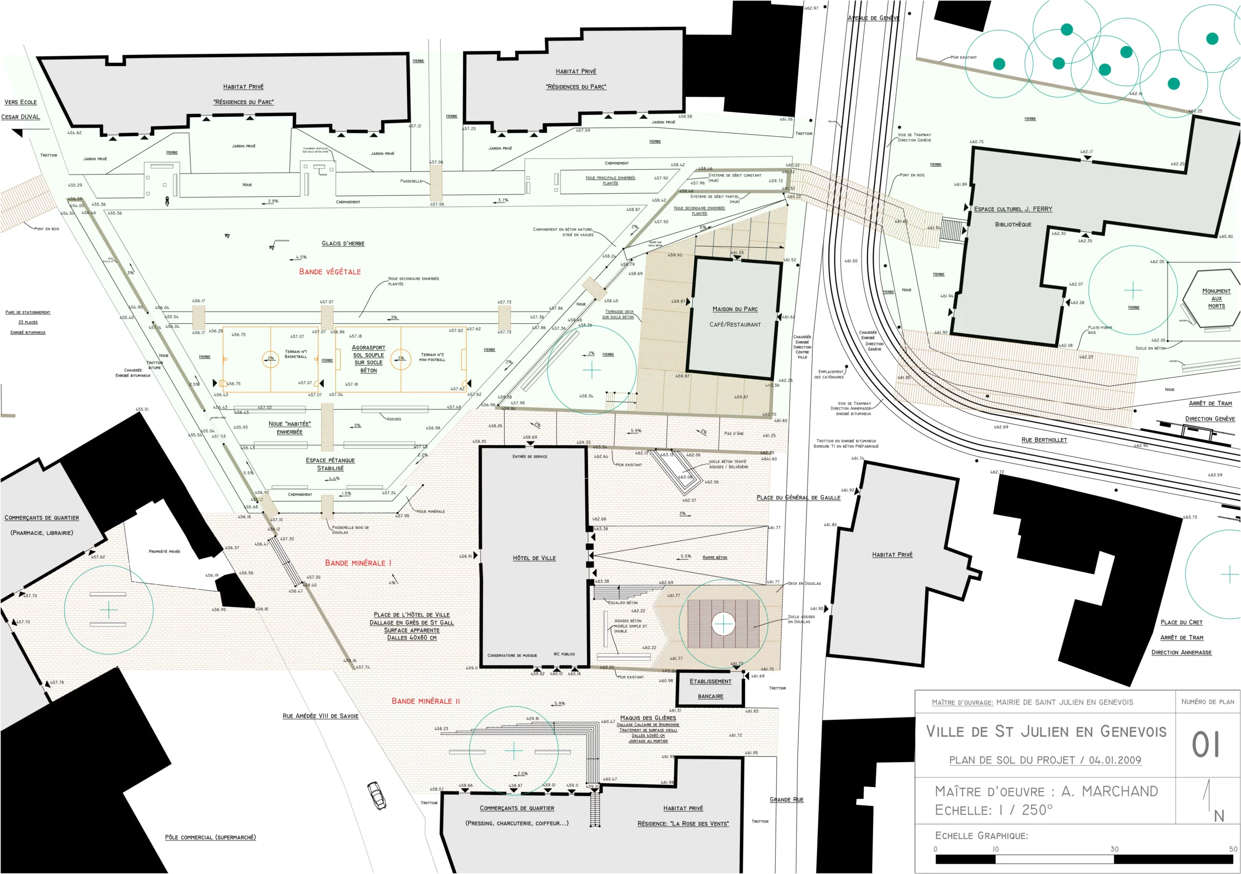
Proposition d’aménagement public pour la place de la Mairie de Saint-Julien en Genevois.
Aménagement d’un grand parc d’agrément intégrant l’actuel square Victor Hugo et la Place du Général de Gaulle ; ce dernier se poursuit tout le long de la rue Berthollet et accompagne l’Avenue de Genève.
Proposition paysagère intégrant des structures sportives consacrées au football, au tennis et à la pétanque ; une gestion des eaux pluviales à ciel ouvert a été pensée avec la disposition d’une grande noue végétalisée traversant tout le site d’est en ouest.
Le programme assimile le passage prochain du tramway genevois sur l’avenue de Genève et la rue Berthollet.
ANNÉE DE RÉALISATION
2012
M.O
Ville de Saint-Julien-en-Genevois
PARTENAIRES
Service de l’urbanisme de la ville de St-Julien-en-Genevois
Lorem ipsum dolor sit amet, consectetur adipiscing elit, sed do eiusmod tempor incididunt ut labore et dolore magna aliqua. Ut enim ad minim veniam, quis nostrud exercitation ullamco laboris nisi ut aliquip ex ea commodo consequat. Duis aute irure dolor in reprehenderit in voluptate velit esse cillum dolore eu fugiat nulla pariatur. Excepteur sint occaecat cupidatat non proident, sunt in culpa qui officia deserunt mollit anim id est laborum.
– Prénom, entreprise, VS



